Opciones de Distribución

Cada “town-house” tiene al menos 60 m2 de jardín propio y su distribución es flexible con el fin de satisfacer las necesidades del cliente. Existe una distribución básica de tres niveles denominada “casa base” con un metraje total de 335.5 m2 y un precio de $355,000. La distribución básica incluye lo siguiente:

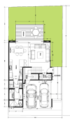
  1. Primera Planta: garaje para dos vehículos, medio baño de visitas, sala, comedor cocina, lavandería, deck exterior en el jardín, bodega externa, dormitorio y baño de servicio. (124.89 m2).

  2. Segunda Planta: un dormitorio principal con walk-in closet y baño completo; y dos dormitorios adicionales con walk-in closet cada uno; un baño completo y un closet de linos. (105.28 m2).

  3. Tercera Planta: amplio espacio multiuso que puede ser acondicionado para sala de televisión, biblioteca, estudio, sala de juego para niños, bodega, cuarto de huéspedes, o combinaciones de las anteriores. Esta planta incluye además un baño completo, así como una amplia terraza exterior (105.28 m2) con vista a las montañas.

A partir de la distribución base y para las casas cuya construcción no ha iniciado, existe la posibilidad de realizar modificaciones y ampliaciones según los requerimientos del cliente.

Las modificaciones son:

Segunda planta:

  1. Ventanas corredizas en el dormitorio principal.
  2. Balcón en cuarto principal.

Tercera planta:

  1. Dormitorio y sala TV en tercer nivel: se divide el área del ático en dos zonas con una pared.
Planos de la Casa Base
 
 

Primera Planta

 

Segunda Planta

 

Tercera Planta